|
Insulation, energy storage and ventilation that work for my clients.
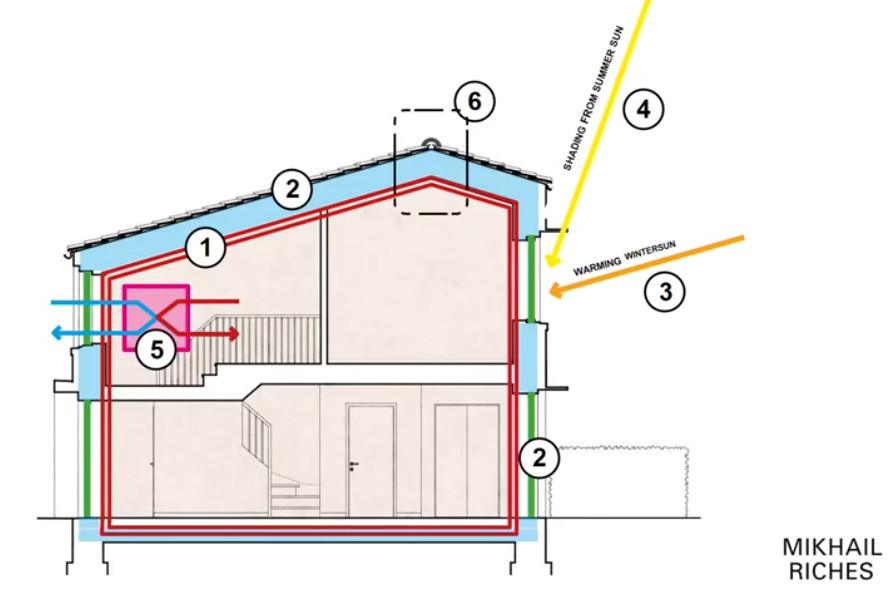
This diagram is explaining an energy efficient house that won the Sterling Prize for architecture.
Your decision isn't only what you like the sound of. It is also what you can afford, what you can live with and maintain, and what amount of carbon released manufacturing and transporting equipment fits easily with your conscience. It is important, I think, to spot the misdirection and lies of sales people and their web sites and to try to work around the short-term rubbish politicians tell us. Architects don't usually know. They rely on advice from far too many sales people. Government policy is to reward you for using more electricity produced by gas, despite their false claim that heat pumps reduce our need for gas. It's nonsense. I explain why fully on the other page. Currently, government policy is that you get a good SAP score for a heat pump that will wreak havoc on the national grid on a very cold day, and a bad SAP score for a ZEB that stores renewable energy to heat your water, reducing the amount of electricity we need on a very cold day. It is very important that you carry out your own research and let your architect know what you like and dislike. 1. A basement is special because it is buried. Soil that is not ventilated to the open air, and does not have any flow of water through it is Thermally Inert. That means, energy does not travel through it. Where your basement is backfilled with soil against your retaining walls, or cast against concrete piles, it is probably very well insulated by the ground. Be mindful of external drainage around the outside of your basement. That will probably cause heat loss before any of your heat gets to the soil against your walls. 2. Air Tight. An expert at a workshop (Whole Life Carbon at the Futurebuild exhibition on March 7th 2019) described that in order to get data his team analysed a new home just completed by a mass national housebuilder. The SAP calculation approved by building control was a U Value of 0.16. But the actual U Value, mainly due to poor air tightness and cold bridging, was worse than 0.30. Waterproof, reinforced concrete, even above ground where you might not need waterproof, is undoubtedly air tight if the work is all supervised so it is done well. You should use waterproof concrete because it is also denser and a better insulator.
I used these figures for denser blocks 100mm thick to suggest that waterproof concrete 150mm thick would have a U Value of 0.25, before insulation. 3. Mechanical Heat Recovery Ventilation (MHRV). Mechanical Heat Recovery Ventilation, when it works, is brilliant saving a lot of money for a small investment and low running costs. But MHRV needs maintaining. One customer who is very pleased with his MHRV said he paid £25 a month by Direct Debit for all his heating, cooking and hot water for a 5 bedroom house with a flat incorporated for his son. He questioned my doubts at the time about MHRV. I said my concern was I had been persuaded that shutting a MHRV unit away in a corner of the loft where no one ever changes the filter can stop it working, meaning no energy saving and possibly toxic air if no fresh air gets in. He told me that his MHRV unit is very accessible and as well as changing the filter 4 times a year, quite expensive but very simple, they take the filter out every fortnight and vacuum up the lint that collects in it, rather like cleaning a tumble dryer filter. He said it is amazing how much lint collects in only two weeks. His MHRV saves him a lot of energy and makes his air lint and dust free throughout the house. It is as if the MHRV does half his vacuuming for him, so it makes sense to vacuum the filter frequently and change it before it clogs up with pollen and so on that vacuuming cannot remove. Air tightness is very important or else hot air will escape or cold air won't all be warmed. If cold air coming in is 10 degrees, and cold air going out is 20 degrees, you have the potential to warm the cold air coming in to 15 degrees, I presume. Still a bit warm. You could Google 'MHRV' yourself and select Images, or follow this link. Do a quick count up. How many of these web sites selling you MHRV TODAY are hiding the unit away where it won't be maintained and will fail? It is essential you keep an eye on where it will go. 3A. Hybrids of MHRV and heat pump. This water storage tank has an air source heat pump on top that recovers even more heat from the stale air about to be extracted after the heat recovery ventilation has already taken some. Earth save products. So, if your MHRV warmed the air coming in to 15 degrees, then the air going out is 15 degrees and a small air source heat pump can refrigerate that down to, say 3 degrees, and heat the refrigerant to 70 degrees and heat your water to over 60 degrees. And this takes heat from the waste water as you shower. Recoup.co.uk Waste water heat recovery - just an idea. Make your own? 4. Good insulation strategy. (From a German website) "Important factors in the refurbishment of the building envelope are the insulating material, the avoidance of thermal bridging, windows and glass constructions and a high degree of air-tightness overall. Key considerations in all cases are an individual evaluation of the entire building and skilled, professional planning and realisation." For Realisation, I read supervision and workmanship.
Basement Floor Insulation. For building regs approval you will need to show floor insulation over the structural floor slab. But I promise you that many of my clients haven't got round to it yet because their basement is warm enough and they prefer the extra headroom. There are 3 choices.
Concreting tip. If you are pouring floor concrete over insulation boards, and concrete that gets between the boards will make them float up lifting the reinforcing steel with it. Put polythene over the insulation before the steel. You will tear it in a few places, but mainly the concrete won't get down between the boards.
5. Solar panels. Whether heating water or making electricity. The Money Saving Expert has a simple yet comprehensive guide. When I looked into photovoltaic panels, it seemed to me that generating lots of electricity when everyone else was doing the same, but neither I nor anyone else needed any electricity, was a poor investment. When I looked into what people were paying to charge their electric cars, sometimes 3 times the cost of house electricity for a very fast charge, I thought that was more interesting. Note. My understanding of building regulations is that if you alter wiring connected to the mains, there are lots of rules. But if you have an electric circuit not connected to the mains, the rules are fewer. You might
6. Buying very cheap electricity from the grid and storing that energy. (Or storing energy from your own solar panels). The biggest missing link is batteries. Two are available (that I know of).
Not as daft as it sounds with Octopus Energy offering free electricity when UK Power Networks has a surplus. 1. Store electricity. Batteries and the other kit are not cheap, I know. Their value will be in how much money you save, or how much you make selling stored electricity to EV users or to the grid at peak times. You can buy mains electricity extremely cheaply at certain times - even free from Octopus energy if you have a smart meter and their Intelligent Octopus Go. They say when the grid is greenest. Presumably when wind and solar are generating too much to use. You could buy cheap to store it to use in your home when tariffs are much higher, saving the difference. On October 10th 2024, The Morrisons nearby with thousands of solar panels on its roof, was selling EV charging for up to 76p for very fast charging, compared to my domestic rate of only 25.21p, per KWhour. 6. Storing the cheapest energy from the grid. A ZEB is a Zero Emissions Boiler. They store heat at a very high temperature to heat water on demand. Ideally, you will buy off peak electricity, going to waste from wind farms and solar panels, for very nearly free and use it to heat up your ZEB 'boiler'. For instance, Thermino heat batteries. and Tepeo ZEB. Others may be available.
7. Is concrete still a good choice despite the carbon cost of cement? Ofgem tells us that the average home uses 14,900kWh of energy from the grids each year.
|






